樋渡建設の土地&建物セット
2プラン
cocot puzzle 土地&建物セットプラン概要
自社オリジナル規格住宅cocotパズル+武雄分譲地がセットになったプランです。

価格
2,925万円(税込)
※外構・申請費用・カーテン・エアコン・火災保険・登記費用・融資手数料などは含まれておりません
月々のお支払額
64,928円
※試算条件 返済年数40年 金利0.32%
建物について
自社オリジナル規格住宅cocotパズル
コストを抑えて自由度を高くした高性能住宅です。
建物概要(cocotパズル)
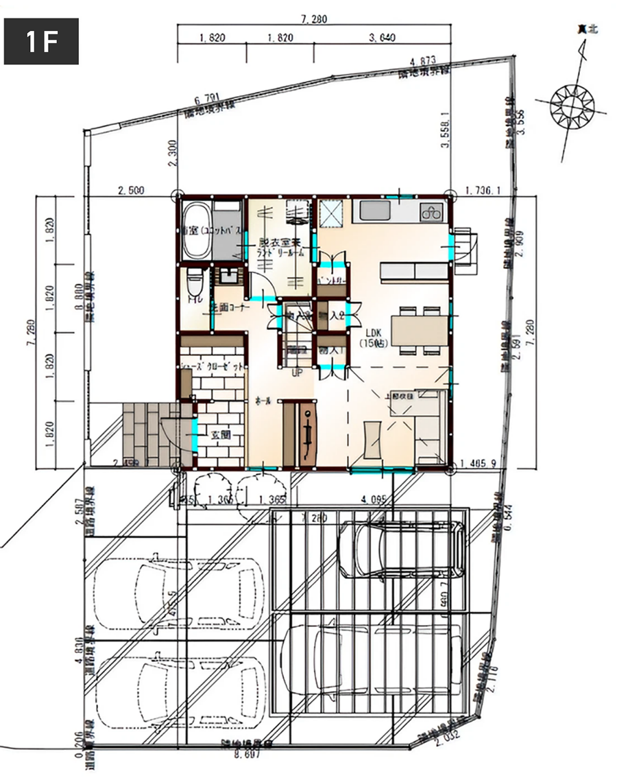
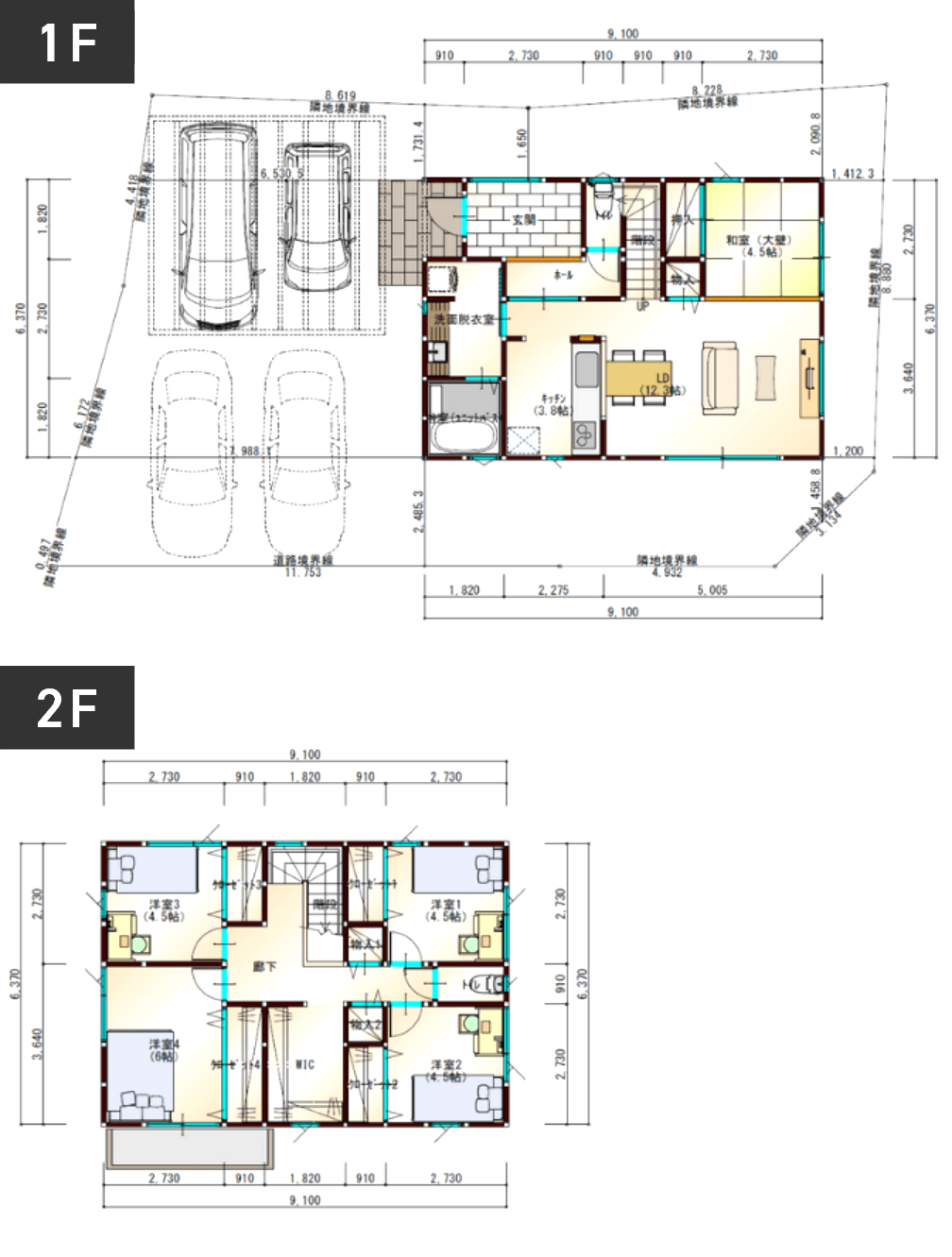
ココットパズル(⇒家の特徴を見る)
- 所在/武雄市朝日町
- 土地/公簿197.55㎡(59.75坪)
- 最適用途/住宅用地
- 私道負担面積/ 有 38.00㎡
(共有持分1/2) - 土地権利/所有権
- 都市計画/線引きされていない区域
- 用途地域/1種低層
- 地勢/平坦
- 建ぺい率/50% 容積率/80%
- 接道状況/西 4.0m 公道 接面4.0m
- 地目/宅地
- 条件等/建築条件付き
- 現況/更地
- 仲介手数料/不要
- 取引態様/売主
土地概要

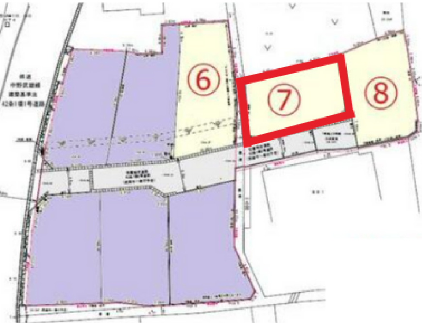
佐賀県武雄市朝日町大字甘久 分譲地「8号地」
- 土地のみ 879.6万円
- 土地面積 197.55m²
- 坪数 59.75坪
- 坪単価 14.72万円
- 交通 JR佐世保線 / 武雄温泉駅 徒歩14分
- 所在地 佐賀県武雄市朝日町大字甘久(地図を見る)
- 周辺情報 武雄市役所(1.4km)/武雄温泉駅(1.2km)/武雄市図書館 (2.2km)
ジブンハウス 土地&建物セットプラン概要
ジブンハウス+武雄分譲地がセットになったプランです。

価格
3,000万円(税込)
※外構・申請費用・カーテン・エアコン・火災保険・登記費用・融資手数料などは含まれておりません
月々のお支払額
66,593円
※試算条件 返済年数40年 金利0.32%
建物について
ジブンハウス
建物概要(ジブンハウス)
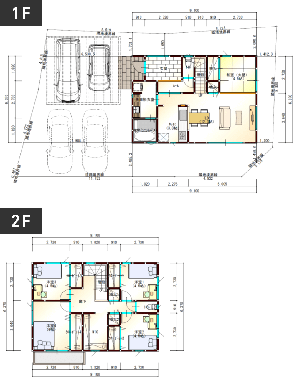
ジブンハウス 710A(⇒家の特徴を見る)
- 所在/武雄市朝日町
- 土地/公簿 187.20m² (56.62坪)
- 最適用途/住宅用地
- 私道負担面積/有 38.00m²
(共有持分1/2) - 土地権利/所有権
- 用途地域/1種低層
- 地勢/平坦
- 建ぺい率/50% 容積率/80%
- 接道状況/南4.0m 公道 接面16.6m
- 地目/宅地
- 条件等/建築条件付き
- 現況/更地
- 仲介手数料/不要
- 都市計画/線引きされていない区域
- 取引態様/売主

土地概要

佐賀県武雄市朝日町大字甘久 分譲地「7号地」
- 土地のみ 878.2万円
- 土地面積 187.20m²
- 坪数 56.62坪
- 坪単価 15.51万円
- 交通 JR佐世保線 / 武雄温泉駅 徒歩14分
- 所在地 佐賀県武雄市朝日町大字甘久(地図を見る)
- 周辺情報 武雄市役所(1.4km)/武雄温泉駅(1.2km)/武雄市図書館 (2.2km)
本プランへのお問い合わせで新築モニターキャンペーンにご参加いただけます!
本プランへのお問い合わせ、モニターになっていただいた方先着3名様に、太陽光発電システム100万円分をどーんとプレゼントさせていただきます!
※以下の条件がございます。
- 2023.10.1~12.28間で初回ご相談、もしくは初回イベント参加
- 2024.3.31までにご契約いただいた方
※沢山のお客様より延長希望の声をいただきました! - 見学会の実施・SNS&HPへの掲載・インタビュー・動画・間取りの公開をさせていただける方






